BDO - Conception Argent
Bâtiment
Bâtiment d'enseignement
Neuf
BDO

Collège de la Salanque | Claira

Claira
|
66-Pyrénées-Orientales

Le projet de construction du collège de Claira a été reconnu Bâtiment Durable Occitanie niveau ARGENT en septembre 2022 pour sa phase Conception.

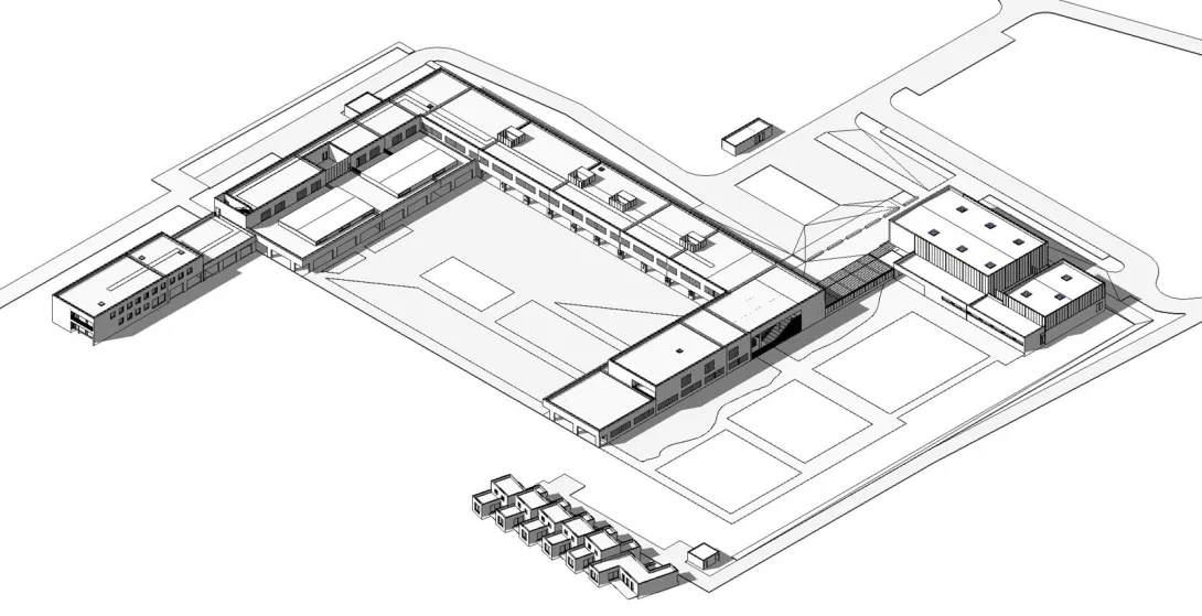
Le département des Pyrénées-Orientales a décidé de construire un nouveau collège au nord-est du département des Pyrénées-Orientales pour le bassin d’éducation de La Salanque.
Celui-ci est dimensionné pour accueillir 28 classes et 2 unités pédagogiques adaptées (ULIS et SEGPA) - soit 700 à 840 élèves - une restauration scolaire de 855 repas par jour, une salle polyvalente de 160 places, un gymnase de type B et des installations sportives extérieures, ainsi qu’un internat de 60 lits.

Le collège se déploie sur 2 niveaux suivant une forme en U de façon à être protégé des nuisances sonores et du vent dominant (Tramontane). Etroits, les bâtiments permettent d’être ventilés naturellement via la présence de lanterneaux en plafond des circulations. Le chauffage sera assuré par une chaufferie biomasse et le rafraîchissement par des batteries adiabatiques sur les centrales de traitement d’air.

Une partie des cours devrait être végétalisée en pleine terre et des jardins pédagogiques devraient être créés.
Il est prévu de récupérer les eaux de pluies pour les toilettes, le nettoyage des parties extérieures et de l’installation photovoltaïque ainsi que l’arrosage du jardin pédagogique.

En bref

  • Usages : collège de 28 classes (700-840 élèves) ; restauration (855 repas/jour) ; internat (60 lits) ; gymnase (type B) ; salle polyvalente (160 places) ; terrains sportifs extérieurs
  • Localisation : Route de Barcarès, 66530 Claira
  • Démarche qualité : Bâtiment Durable Occitanie
    • Climat : Méditerranée
    • Densité : Péri-urbain
    • Référentiel : v 3.31

Chiffres clés

Calendrier

  • Début des travaux : T1 2023
  • Livraison : mai - juin 2024

Caractéristiques

  • Nombre de bâtiments : 3 (collège, internat, gymnase)
  • Nombre de niveaux : 2
  • Classification ERP : 2e catégorie (types R, N, X) - 4e catégorie pour l’internat (type R)

Surfaces

  • Surface de plancher : 10 633 m²
  • Surface utile : 8 667 m²

Coûts

  • Budget prévisionnel travaux : 17 M€ HT (2019)
  • Coût au m² (hors VRD, honoraires) : 1370 € HT/m²
  • Coût VRD : 2,1 M€ HT
  • Coût total au m² : 1593 € HT/m²

Consommations énergétiques

  • Consommation d’énergie primaire réglementaire (RT2012) 5 usages hors PV : 61 kWhep/m².an ; avec PV : 41,2 kWhep/m².an
  • Niveau E3

Productions énergétiques

  • Production photovoltaïque (RT2012) : 19,4 kWhep/m².an

Choix constructif / équipement

Système constructif

  • Mode constructif : béton
  • Murs extérieurs :
    • voiles béton 20 cm ; isolation par l’intérieur en polystyrène expansé 10 cm associé à une plaque de plâtre (R = 4,2 m².K/W)
  • Toitures :
    • toiture terrasse inaccessible : plancher béton 20 cm ; isolation par au-dessus par 20 cm de polystyrène expansé (R = 5,6 m².K/W)
    • toiture terrasse accessible : plancher béton 20 cm ; isolation par au-dessus par 9 cm de polyuréthane (R = 4,2 m².K/W)
    • toitures sheds restauration, ateliers, émergences circulations R+1 Collège : charpente bois lamellé-collé
    • toiture gymnase : charpente bois lamellé-collé
  • Plancher bas :
    • sur terre-plein ou vide sanitaire : plancher béton 20 cm ; isolation polyuréthane 8 cm sous chape (R = 3,9 m2K/W)
    • sur extérieur : plancher béton 20 cm ; isolation en sous-face par polystyrène expansé-laine de roche-laine de bois minéralisée 10 cm
  • Menuiseries :
    • Châssis : mixte bois-alumninium
    • Vitrages : double vitrage (Uw = 1,4 W/m².K, Sw = 50%)
    • Protections : brise-soleil orientables alu sur les façades exposées ; stores d’occultation intérieur ou extérieur sur tous les vitrages

Équipements techniques

  • Chauffage :
    • Production : 2 chaudières bois mixtes (granulés/plaquettes) ; P = 2 x 250 kW
    • Emission : panneaux rayonnants ou radiateurs (CTA dans locaux de grande hauteur à forte occupation)
  • Refroidissement :
    • CTA adiabatiques
    • Ventilation nocturne sur système CTA
  • Ventilation :
    • Centrales de traitement d’air (CTA) double-flux à batteries adiabatiques (9 pour le Collège, 1 pour le Gymnase, 1 pour l’Internat)
    • CTA avec batteries adiabatiques
  • Eau Chaude Sanitaire :
    • Chaudières bois
    • Ballons 2000 L (Cuisine), 1000 L (Internat), 1000 L (Gymnase)
  • Eclairage :
    • LED ; détection de présence et/ou commande manuelle suivant locaux
  • Production d’énergie :
    • production photovoltaïque 63 kWc
      • Collège : 50 kWc
      • Internat : 6,7 kWc
      • Gymnase : 6,7 kWc
  • Récupération des eaux de pluie :
    • Cuve de 120 m3 (autonomie d’utilisation d’une semaine) ; alimentation des WC, nettoyage des parties extérieures et de l’installation photovoltaïque ; arrosage du jardin pédagogique ; taux de couverture des WC : 60%
Retourner aux opérations